






A Classic Case of Coffee
Project name
Typology
Location
Year
Status
Size
Design team
Photographer
Publications
A Classic Case of Coffee
Residential, Interiors
Coimbatore
2022
Completed
6000 sq.ft
Tasneem Vohra, Kkanche Ratadia
Yash Jain
Elle decor VolZero
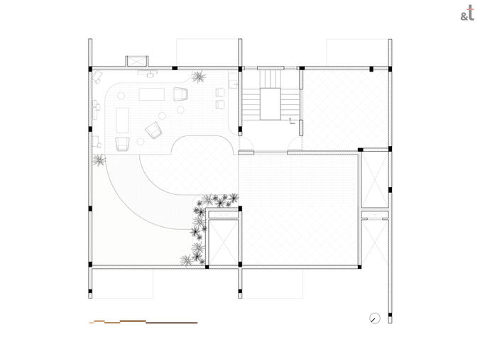
This villa is located on the fringes of Coimbatore with magnificent views of the mountains. It is a part of a villament, wherein two 3BHK villas have been combined into one 5BHK villa with a bar lounge + terrace garden. The evolved layout is a synthesis of the client’s brief of being a Vaastu complaint design and have spatially resolved functions. The modification also includes increasing the lintel heights, making the fenestrations in the common spaces into French windows, adding a skylight to the stairwell and removing the existing wall between the dining and staircase. The larger openings bring a sense of grandeur into the home, along with more light and ventilation.
The design brief also included a noble material preference of marble and wood to emphasize luxury. The mood board of this home is an economical take on these materials, while ensuring that the design exudes an aura of opulence. Beige tiles, brown veneer and highlights of brass set a soothing tone for the rest of the colours and textures to build upon.
If this house were to be judged by its cover, the doors forms an excellent first impression. They are lined with stripes of teak punctuated with projected beechwood beading. Thin, tiled columns with fluted glass form the partition between the foyer and the living room. The choice of form and material provides glimpses into the living room, allowing the spaces to connect. At the threshold of the foyer and living the entire public complex of the house opens up all the way to the stairwell.
The stairwell brings in a flood of light from the skylight into the surrounding spaces. A majority of this light leaks into the dining space, highlighting the splashes of colour on the marble inlay dining table. The stairwell is intended to be the light core of the home. While the skylight assists with light during the day, the individually lit treads cast a soft glow during the night leading to the terrace garden.
The zoning of spaces is by the way of brass highlights and orchestrating the flooring. The corridor from the foyer to the living and dining spaces is defined by leading lines on the floor. The brass also weaves its way onto the feature wall embedded within the stone veneer. Sliding the fluted glass door at the further end of the room reveals the puja niche. The living room functions as an extension of the prayer space.
The bedrooms are an exploration in patterns with various materials woven around the core palette of the design. The use of wood veneer, charcoal panels, fabric and stone veneer in muted colours helps offset the neutral, brown tones around the house. In order to make the experience of dressing a luxurious one, the bathrooms and walk-in are combined into one larger space. They are arranged on either side of a corridor and are separated by sleek glass partitions.
With bedrooms on either side, the corridor on the first floor culminates at the bar. Hues of brown meander through the two floors establishing a monochrome spectrum. The light tones of the foyer get progressively darker upon delving deeper into the house and conclude in a chiaroscuro-esque bar. The space employees the use of black and white tiles in combination with wooden flooring to demarcate between the bar and seating area. The back-lit glass shelves in the black semi-circle case is the main protagonist.
The project is an experiment in materiality and is a marriage between fine glossy and rough stone finishes. The white-beige-black spectrum of the house reminds one of a cup of warm, soothing coffee. Dark tones with hints of texture, mellow beige of satin milk and the silky white foam on top.































